*Base price includes essential finishes: exterior cladding, kitchen, flooring, windows, lighting, washrooms, and appliances. To get a complete project estimate, including site work, take the free modular home suitability checker now.
Thinking about buying the VOR 800?
See if you qualify to have this model designed, built, and delivered to you by taking the free modular home suitability checker today.
The VOR 800 is a spacious, modular home with 800 sq ft of elegance and functionality. Choose between a one-bedroom or two-bedroom layout. Ideal as an ADU, rental property, or pool house. Its open floor plan is filled with natural light, connecting indoor and outdoor spaces. Premium finishes and modern features ensure luxury and practicality. With generous living areas, it’s perfect for tenants or homeowners. The VOR offers the potential for a large backyard or poolside space.
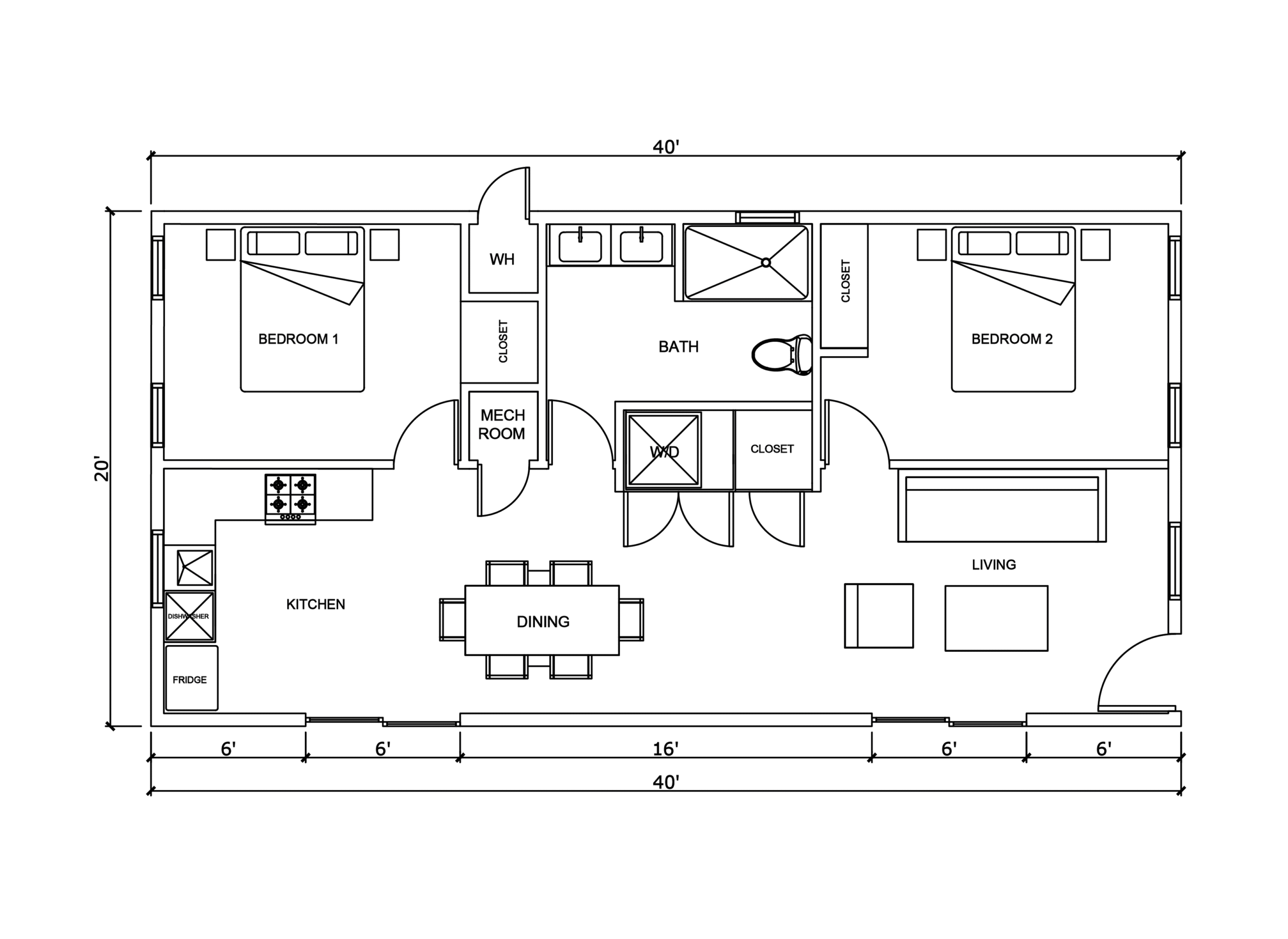
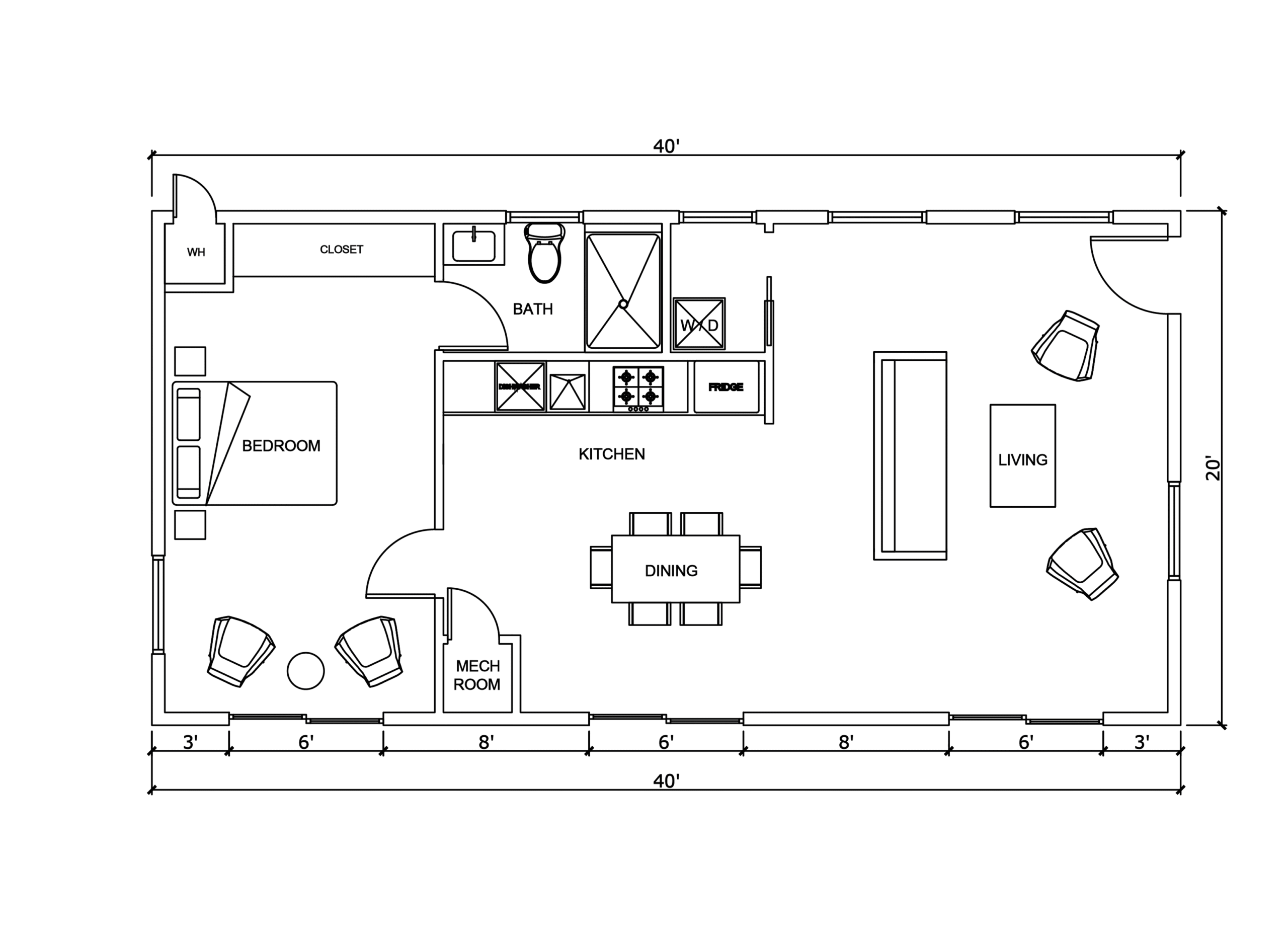
Floor Plan: 800 ft² Dimensions: 20ft x 40ft Front Elevation: 11.4ft Rear Elevation: 9.6ft
Floor Plan
1 Bedroom
2 Bedroom
1 Bedroom
2 Bedroom
// Сховати непотрібні одразу
// Якщо лише одне відео — ховаємо всі кнопки
// Активуємо перший доступний таб
}, 2000); // 2 секунди затримки
360 Panoramic View
*To view other rooms click the white arrow below the 3D rendering
Interior Features
Expansive open-plan living area filled with natural light
High-quality vinyl flooring for a sleek, modern finish
Energy-efficient Low-E windows that maximize views and comfort
Contemporary kitchen equipped with premium cabinetry and fixtures
Exterior Features
Durable cement board and aluminum siding that enhances curb appeal
Customizable exterior finishes to reflect your personal taste
Ample outdoor space for relaxation and entertainment
Engineered foundation built to withstand various climates
Materials & Finishes
Choose from a variety of top quality surfaces and finishes to add a personal touch your new Meka Modular home.
Each of these finishes comes standard with the price of your new home.
Our homes are designed and manufactured in California, upholding the highest standards of quality and craftsmanship. Supporting local industries and adhering to strict building codes guarantees that your modular home is built to last.
Stay Connected with Meka Modular
Join our community to get the latest updates, exclusive offers, and insights into the future of modular living. Be the first to know about our new models, special promotions, and innovative design tips. Stay informed and inspired with Meka Modular.