*Base price includes essential finishes: exterior cladding, kitchen, flooring, windows, lighting, washrooms, and appliances. To get a complete project estimate, including site work, take the free modular home suitability checker now.
Thinking about buying the Napa 600?
See if you qualify to have this model designed, built, and delivered to you by taking the free modular home suitability checker today.
The Napa 600 is a modern, modular sanctuary. With 600 sq ft of space, it blends style and serenity. Choose from a one-bedroom or two-bedroom layout. Perfect as a rental, guesthouse, or pool house. Its open, light-filled design connects indoor and outdoor living. Featuring panoramic windows and high-end finishes. Napa offers luxury and efficiency. It’s ideal for relaxation, entertainment, or generating rental income.
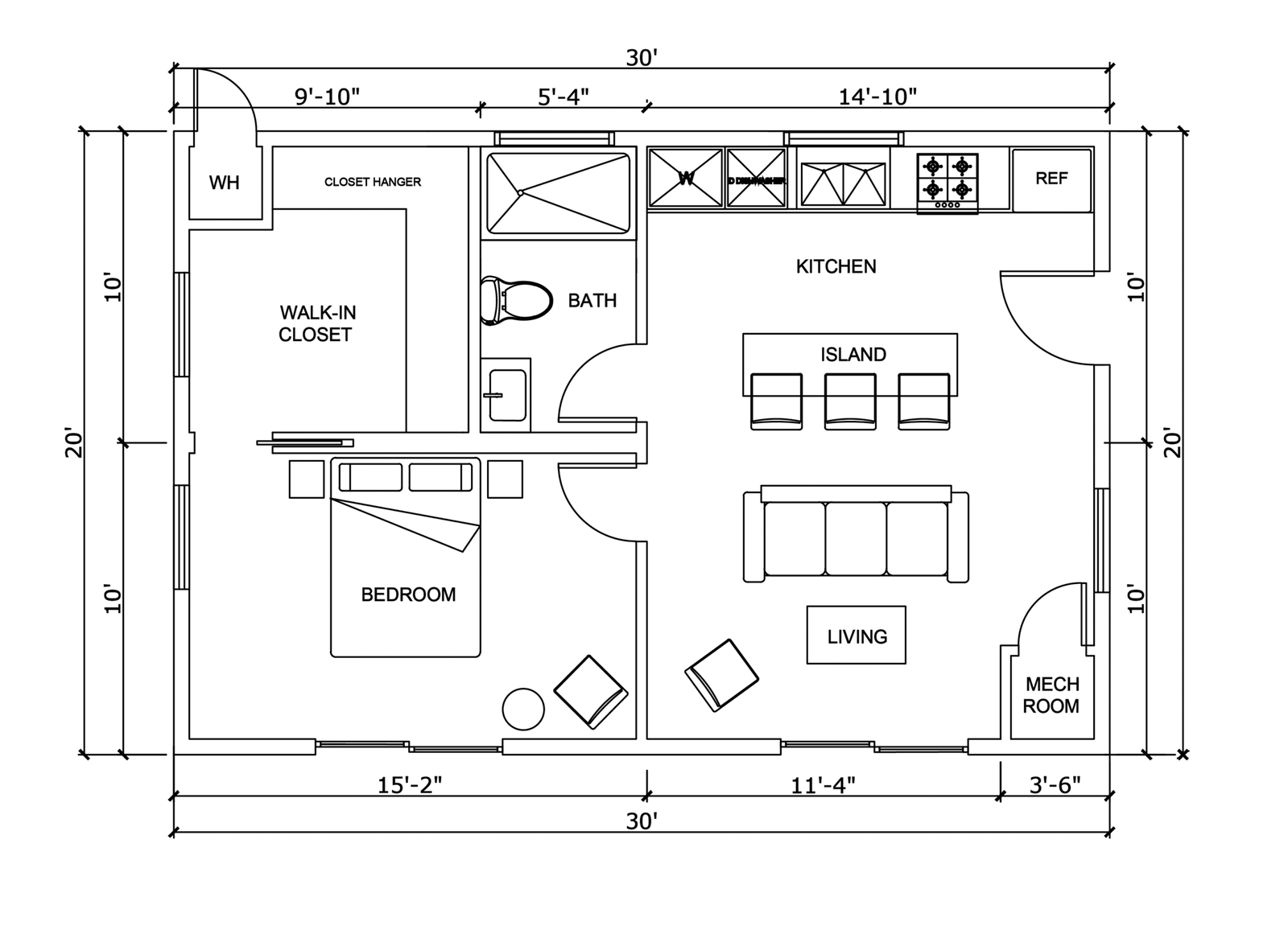
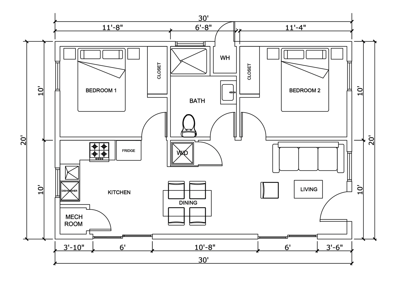
Floor Plan: 600 ft² Dimensions: 20ft x 30ft Front Elevation: 11.4ft Rear Elevation: 9.6ft
Floor Plan
1 Bedroom
2 Bedroom
1 Bedroom
2 Bedroom
// Сховати непотрібні одразу
// Якщо лише одне відео — ховаємо всі кнопки
// Активуємо перший доступний таб
}, 2000); // 2 секунди затримки
360 Panoramic View
*To view other rooms click the white arrow below the 3D rendering
Interior Features
Light-filled open-plan living area with expansive windows
Durable, stylish vinyl flooring that adds a modern touch
Energy-efficient Low-E windows providing both comfort and stunning views
Contemporary kitchen with premium cabinetry and fixtures, designed for function and flair
Exterior Features
Chic, resilient cement board and aluminum siding that boosts curb appeal
Customizable exterior finishes to suit your personal style
Spacious outdoor areas perfect for both relaxation and hosting gatherings
Sturdy foundation engineered for longevity in any environment
Materials & Finishes
Choose from a variety of top quality surfaces and finishes to add a personal touch your new Meka Modular home.
Each of these finishes comes standard with the price of your new home.
Our homes are designed and manufactured in California, upholding the highest standards of quality and craftsmanship. Supporting local industries and adhering to strict building codes guarantees that your modular home is built to last.
Stay Connected with Meka Modular
Join our community to get the latest updates, exclusive offers, and insights into the future of modular living. Be the first to know about our new models, special promotions, and innovative design tips. Stay informed and inspired with Meka Modular.